GW4-40.5 Series (HV Disconnector)

GW4-40.5 outdoor isolation switch is suitable for power systems with outdoor AC at 50Hz and rated voltage of 40.5 kV, respectively, for the line to be used as an opening and closing circuit when there is voltage and no load.

The products meet the requirements of GB/T 1985 and other related standards.


  • GW4-40.5 Series (HV Disconnector)
  • GW4-40.5 Series (HV Disconnector)

Product Detail

Main Technical Parameter

Model No. Rated voltage (kV) Rated current (A) Peak withstand current (kA) 4 seconds short-term withstand current (kA)
GW4-40.5
GW4-40.5D
40.5 400 50 20
630 50 20
1000 63 25
1250 80 31.5
1600 80 31.5

Structural Characteristics

1.The disconnector consists of a base, an insulating pillar, a conductive part, and an operating mechanism. There are two pillars at each pole, and the upper end of each pillar is equipped with a conductive knife, and the contact of the knife on both sides is in the middle of the two pilars. The lower ends of the pillars are each equipped with bearing sleeves. Driven by the operating mechanism, the knife can be rotated horizontally by 90° to meet the requirements of opening and closing.

2.The disconnector is a unipolar type, and the three poles can also be connected into a three-pole type that can be linked by a connecting rod. Equipped with CS11 type or CS8-6D type manual mechanism operation. Among them, CS17 is used for disconnector with double grounding devices. (The motor mechanism can be equipped as needed).

3.The disconnector has a reasonable structure and flexible operation; it can be used as a single pole or as a three-pole, and it is easy to install; the opening distance of the contact knife is large, and the insulation is safe and reliable. It can also be ungrounded or equipped with single-sided grounding or double grounding according to user needs.

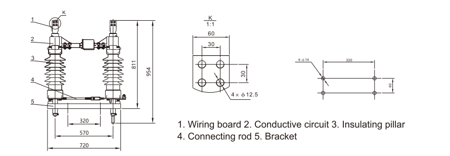
GW4-40.5

Figure 1 GW4-40.5 outdoor high voltage AC isolation switch outline diagram

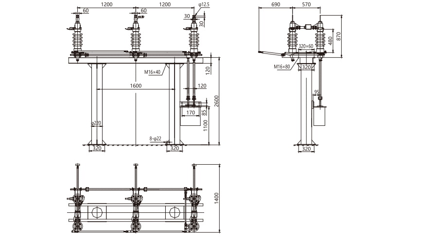
GW4-40.5

Figure 2 GW4-40.5 outdoor high voltage AC disconnector (single ground) installation diagram

GW4-40.5

Figure 3 GW4-40.5 type outdoor high voltage AC isolation switch manual operation mechanism

  • Products categories

    Write your message here and send it to us